Menu

ユニハウス弐番館 105 [住居用] アパート 
お気に入り登録

北海道札幌市北区拓北二条2丁目 /2LDK /54.78m2 /1階部分 /向き /

賃料(共益費) 47,000円 (3,000円)
間取り(面積) 2LDK ( 54.78 m2)
○ 札沼線「拓北」徒歩10分 

現状:退去済み、内装中
ネット無料(JCOM320M)、エアコンは5月以降に設置工事に入ります。

部屋情報

Room Information
物件写真
物件写真
物件写真
物件写真
物件写真
物件写真
物件写真
物件写真
物件写真

間取り図
物件写真

Room Plan

間取タイプ 2LDK
間取詳細 LD:11.7畳 K:2.8畳 洋:6.2畳 洋:6.2畳
専有面積 54.78m2
方 位
所在階 1階部分
賃 料 47,000円
管理費 3,000円
敷 金 0円
礼 金 0円
状 態 空室
入居時期:相談

物件情報

Building Information
物件種別 [住居用] アパート
所在地 北海道札幌市北区拓北二条2丁目
交通 札沼線「拓北」徒歩10分
構造 木造 地上2階 
築年 2005年01月築
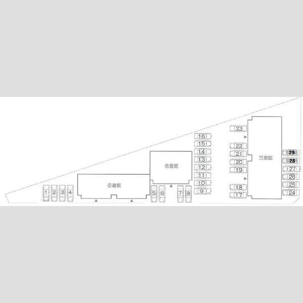
駐車場 19番、27番

設備・オススメ

Equipments & Recommendation

★ 条件

○ 2人入居可能  ○ 保証会社利用必須 

★ キッチン

○ 給湯器(プロパンガス)  ○ カウンターキッチン 

★ 水廻り

○ 風呂  ○ トイレ(水洗)  ○ 洗面台(独立)  ○ 暖房便座  ○ シャワートイレ  ○ 洗髪洗面化粧台  ○ バス・トイレ別  ○ 洗濯機置場(室内) 

★ 冷暖房

○ エアコン(冷房のみ)  ○ 暖房(灯油) 

★ 収納

○ シューズボックス 

★ 放送・通信

○ ネット使用料不要 

★ セキュリティ

○ インターホン(カメラ付き) 

★ その他

○ ガス(プロパンガス)  ○ 水道(公営)  ○ 排水(公共下水)  ○ バルコニー/ベランダ  ○ フローリング 

物件詳細

Specification
物件種別 [住居用] アパート
物件名 ユニハウス弐番館
号室名 105
所在地 北海道札幌市北区拓北二条2丁目1-15
交通 札沼線「拓北」徒歩10分
構造 木造地上2階
築年月 2005年01月
駐車場 19番、27番
町会費 300円(月額)
所在階 1階部分
方位 - -  
間取り 2LDK
LD:11.7畳 K:2.8畳 洋:6.2畳 洋:6.2畳
専有面積 54.78  m2
状態 空室
賃料 47,000円
共益費 3,000円
敷金 0円
礼金 0円
他諸経費 保険:保険要加入 2年契約 23,500円 ~
※ 特記されているものだけを表示していますので、詳しくはお問い合わせの際にご確認ください。
その他 普通借家2年間
普通借家


オススメ ○ 現状:退去済み、内装中
ネット無料(JCOM320M)、エアコンは5月以降に設置工事に入ります。
設備・条件 ○ 2人入居可能 ○ 保証会社利用必須 ○ 給湯器(プロパンガス) ○ カウンターキッチン ○ 風呂 ○ トイレ(水洗) ○ 洗面台(独立) ○ 暖房便座 ○ シャワートイレ ○ 洗髪洗面化粧台 ○ バス・トイレ別 ○ 洗濯機置場(室内) ○ エアコン(冷房のみ) ○ 暖房(灯油) ○ シューズボックス ○ ネット使用料不要 ○ インターホン(カメラ付き) ○ ガス(プロパンガス) ○ 水道(公営) ○ 排水(公共下水) ○ バルコニー/ベランダ ○ フローリング 
情報更新日 2026-02-07 06:20:59
お問合せ

お問い合わせの際に 「ユニハウス弐番館 105」 もしくは 「お部屋ID:9195711」 とお伝えいただくとスムーズです。

株式会社リヴァイ 札幌市市中央区宮の森3条4丁目6番7 301 011-676-5481
×ウインドウを閉じる

Fudousan Plugin Ver.5.3.0