Menu
北海道札幌市中央区南十二条西14丁目 /1LDK /38.54m2 /4階部分 /北向き /
| 賃料(共益費) | 67,000円 (4,000円) |
|---|
| 間取り(面積) | 1LDK ( 38.54 m2) |
|---|
2026年6月末完成の新築マンションです!
市電西線11条 徒歩2分です!
プロパンですが都市ガス単価並み!ネット無料で光熱費と通信費がお得な1LDK!
エアコン付きで夏場も快適!
2口コンロ備え付けのシステムキッチン付き!
宅配BOX付、通販商品の受け取りも楽ちんです!
エアコンは冷房専用の為、冬期間の使用は禁止です。
屋内駐輪場、バイク不可。
Room Plan
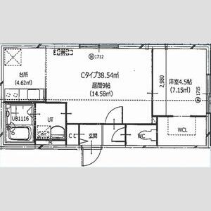
| 間取タイプ | 1LDK | ||
|---|---|---|---|
| 間取詳細 | LD9*K2.9*洋4.5 | ||
| 専有面積 | 38.54m2 | ||
| 方 位 | 北向き | ||
| 所在階 | 4階部分 | ||
| 賃 料 | 67,000円 | ||
| 管理費 | 4,000円 | ||
| 敷 金 | 67,000円 | ||
| 礼 金 | なし | ||
| 状 態 |
建築中
入居時期:2026年7月上旬 |
||
| 物件種別 | [住居用] アパート |
|---|---|
| 所在地 | 北海道札幌市中央区南十二条西14丁目 |
| 交通 | 札幌市電「西線11条」徒歩2分 札幌市電「西線14条」徒歩8分 |
| 構造 | 鉄筋コンクリート造 地上4階 |
| 築年 | 2026年07月築 |
| 駐車場 | 駐車場の空き状況につきましては、必ず「GOWEB」よりご確認下さい。 |
○ 角部屋
○ 2人入居可能
○ 給湯器(プロパンガス) ○ ガスコンロ(2口) ○ システムキッチン
○ 風呂 ○ トイレ ○ 洗面台(独立) ○ 浴室乾燥機 ○ 暖房便座 ○ シャワートイレ ○ 洗髪洗面化粧台 ○ バス・トイレ別 ○ 洗濯機置場(室内)
○ エアコン ○ 暖房(プロパンガス)
○ ウォークインクローゼット
○ UHFアンテナ(地デジ用) ○ インターネット対応 ○ ネット使用料不要
○ 宅配BOX ○ インターホン(カメラ付き)
○ 専用ごみ置場 ○ 自転車置場 ○ ガス(プロパンガス) ○ 水道(公営) ○ 排水(公共下水) ○ 照明 ○ 網戸 ○ デザイナーズ
| 物件種別 | [住居用] アパート |
|---|---|
| 物件名 | HERO YAMAHANA1 |
| 号室名 | 403 |
| 所在地 | 北海道札幌市中央区南十二条西14丁目14 |
| 交通 | 札幌市電「西線11条」徒歩2分 札幌市電「西線14条」徒歩8分 |
| 構造 | 鉄筋コンクリート造地上4階 |
| 築年月 | 2026年07月 |
| 駐車場 | 駐車場の空き状況につきましては、必ず「GOWEB」よりご確認下さい。 |
| 町会費 | |
| 所在階 | 4階部分 |
| 方位 | 北向き   |
| 間取り |
1LDK LD9*K2.9*洋4.5 |
| 専有面積 | 38.54 m2 |
| 状態 | 建築中 |
| 賃料 | 67,000円 |
| 共益費 | 4,000円 |
| 敷金 | 67,000円 |
| 礼金 | なし |
| 他諸経費 | ※ 特記されているものだけを表示していますので、詳しくはお問い合わせの際にご確認ください。 |
| その他 |
法人契約可 普通借家2年間 普通借家 |
| オススメ |
○ 2026年6月末完成の新築マンションです! 市電西線11条 徒歩2分です! プロパンですが都市ガス単価並み!ネット無料で光熱費と通信費がお得な1LDK! エアコン付きで夏場も快適! 2口コンロ備え付けのシステムキッチン付き! 宅配BOX付、通販商品の受け取りも楽ちんです! エアコンは冷房専用の為、冬期間の使用は禁止です。 屋内駐輪場、バイク不可。 |
| 設備・条件 | ○ 角部屋 ○ 2人入居可能 ○ 給湯器(プロパンガス) ○ ガスコンロ(2口) ○ システムキッチン ○ 風呂 ○ トイレ ○ 洗面台(独立) ○ 浴室乾燥機 ○ 暖房便座 ○ シャワートイレ ○ 洗髪洗面化粧台 ○ バス・トイレ別 ○ 洗濯機置場(室内) ○ エアコン ○ 暖房(プロパンガス) ○ ウォークインクローゼット ○ UHFアンテナ(地デジ用) ○ インターネット対応 ○ ネット使用料不要 ○ 宅配BOX ○ インターホン(カメラ付き) ○ 専用ごみ置場 ○ 自転車置場 ○ ガス(プロパンガス) ○ 水道(公営) ○ 排水(公共下水) ○ 照明 ○ 網戸 ○ デザイナーズ |
| 情報更新日 | 2026-01-09 03:09:21 |
| お問合せ |
お問い合わせの際に 「HERO YAMAHANA1 403」 もしくは 「お部屋ID:9122487」 とお伝えいただくとスムーズです。
株式会社リヴァイ
札幌市市中央区宮の森3条4丁目6番7 301
011-676-5481
|

| 間取り | / 1LDK LD9*K2.9*洋4.5 | ||
|---|---|---|---|
| 完成年月 | / 2026年07月 | ||
| 構造 | / 鉄筋コンクリート造地上4階 | ||
| 入居可能日 | / 建築中 | ||
| 総戸数 | / | ||
| 契約形態 | / | ||
| 駐車場 | / 駐車場の空き状況につきましては、必ず「GOWEB」よりご確認下さい。 | ||
| 売却(敷引) | / | ||
| 割引サービス | / | ||
| 設備 | / ○ 角部屋 ○ 2人入居可能 ○ 給湯器(プロパンガス) ○ ガスコンロ(2口) ○ システムキッチン ○ 風呂 ○ トイレ ○ 洗面台(独立) ○ 浴室乾燥機 ○ 暖房便座 ○ シャワートイレ ○ 洗髪洗面化粧台 ○ バス・トイレ別 ○ 洗濯機置場(室内) ○ エアコン ○ 暖房(プロパンガス) ○ ウォークインクローゼット ○ UHFアンテナ(地デジ用) ○ インターネット対応 ○ ネット使用料不要 ○ 宅配BOX ○ インターホン(カメラ付き) ○ 専用ごみ置場 ○ 自転車置場 ○ ガス(プロパンガス) ○ 水道(公営) ○ 排水(公共下水) ○ 照明 ○ 網戸 ○ デザイナーズ | ||
| 備考 | / ○ 法人契約可 ○ 普通借家 ○ 2年間 | ||
HERO YAMAHANA1 403
物件所在地:北海道札幌市中央区南十二条西14丁目
札幌市電「西線11条」徒歩2分
札幌市電「西線14条」徒歩8分
67,000円
| ■管理費 | 4,000円 |
|---|---|
| ■敷金 | 67,000円 |
| ■礼金 | なし |
| <その他費用> | |