Menu
北海道札幌市中央区南二十一条西7丁目 /1LDK /43.47m2 /7階部分 /南向き /
| 賃料(共益費) | 90,000円 (10,000円) |
|---|
| 間取り(面積) | 1LDK ( 43.47 m2) |
|---|
クリーンリバー フィネス山鼻21条
分譲マンションならではの快適な1LDK
都市ガス給湯・暖房で、毎月の光熱費も安心。
南向きのお部屋は日当たりが良く、明るく心地よい暮らしが叶います。
築年数の浅い分譲マンションのため、設備や室内の仕様もワンランク上。
賃貸では貴重な1LDKタイプで、一人暮らしはもちろん、ゆとりを持って暮らしたい方にもおすすめです。
敷地内駐車場の利用も可能。
徒歩圏内にはアクロスプラザがあり、毎日のお買い物にも困りません。
「住み心地」と「便利さ」をどちらも大切にしたい方へ。
Room Plan
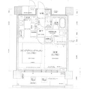
| 間取タイプ | 1LDK | ||
|---|---|---|---|
| 間取詳細 | 11.7*5.7 | ||
| 専有面積 | 43.47m2 | ||
| 方 位 | 南向き | ||
| 所在階 | 7階部分 | ||
| 賃 料 | 90,000円 | ||
| 管理費 | 10,000円 | ||
| 敷 金 | 1ヶ月 | ||
| 礼 金 | 1ヶ月 | ||
| 状 態 |
空室
入居時期:2026年1月16日 |
||
| 物件種別 | [住居用] マンション |
|---|---|
| 所在地 | 北海道札幌市中央区南二十一条西7丁目 |
| 交通 | 札幌市電「東屯田通」徒歩2分 札幌市電「幌南小学校前」徒歩3分 |
| 構造 | 鉄筋コンクリート造 地上15階 |
| 築年 | 2024年03月築 |
| 駐車場 | 12000円 都度管理組合に空室確認必要 |
○ 2人入居可能
○ 給湯器(都市ガス) ○ ガスコンロ(3口以上) ○ システムキッチン ○ 食器洗浄乾燥機(ビルドイン型)
○ 風呂(ユニットバス) ○ トイレ(水洗) ○ 洗面台(独立) ○ 浴室乾燥機 ○ 暖房便座 ○ シャワートイレ ○ 追い焚き ○ バス・トイレ別
○ エアコン(冷房のみ) ○ 暖房(都市ガス) ○ 床暖房
○ ウォークインクローゼット ○ トランクルーム ○ シューズボックス
○ BS ○ 光ファイバー ○ インターネット対応
○ オートロック ○ オートロック ハンズフリー ○ 宅配BOX ○ 管理人(日勤) ○ 防犯カメラ ○ インターホン(カメラ付き)
○ 専用ごみ置場 ○ エレベーター ○ 自転車置場 ○ ガス(都市ガス) ○ 水道(公営) ○ 排水(公共下水) ○ バルコニー/ベランダ
| 物件種別 | [住居用] マンション |
|---|---|
| 物件名 | クリーンリバーフィネス山鼻21条 |
| 号室名 | 706 |
| 所在地 | 北海道札幌市中央区南二十一条西7丁目2-19 |
| 交通 | 札幌市電「東屯田通」徒歩2分 札幌市電「幌南小学校前」徒歩3分 |
| 構造 | 鉄筋コンクリート造地上15階 |
| 築年月 | 2024年03月 |
| 駐車場 | 12000円 都度管理組合に空室確認必要 |
| 町会費 | |
| 所在階 | 7階部分 |
| 方位 | 南向き   |
| 間取り |
1LDK 11.7*5.7 |
| 専有面積 | 43.47 m2 |
| 状態 | 空室 |
| 賃料 | 90,000円 |
| 共益費 | 10,000円 |
| 敷金 | 1ヶ月 |
| 礼金 | 1ヶ月 |
| 他諸経費 |
保険: 23,500円 ※ 特記されているものだけを表示していますので、詳しくはお問い合わせの際にご確認ください。 |
| その他 |
普通借家2年間 普通借家 |
| オススメ |
○ クリーンリバー フィネス山鼻21条 分譲マンションならではの快適な1LDK 都市ガス給湯・暖房で、毎月の光熱費も安心。 南向きのお部屋は日当たりが良く、明るく心地よい暮らしが叶います。 築年数の浅い分譲マンションのため、設備や室内の仕様もワンランク上。 賃貸では貴重な1LDKタイプで、一人暮らしはもちろん、ゆとりを持って暮らしたい方にもおすすめです。 敷地内駐車場の利用も可能。 徒歩圏内にはアクロスプラザがあり、毎日のお買い物にも困りません。 「住み心地」と「便利さ」をどちらも大切にしたい方へ。 |
| 設備・条件 | ○ 2人入居可能 ○ 給湯器(都市ガス) ○ ガスコンロ(3口以上) ○ システムキッチン ○ 食器洗浄乾燥機(ビルドイン型) ○ 風呂(ユニットバス) ○ トイレ(水洗) ○ 洗面台(独立) ○ 浴室乾燥機 ○ 暖房便座 ○ シャワートイレ ○ 追い焚き ○ バス・トイレ別 ○ エアコン(冷房のみ) ○ 暖房(都市ガス) ○ 床暖房 ○ ウォークインクローゼット ○ トランクルーム ○ シューズボックス ○ BS ○ 光ファイバー ○ インターネット対応 ○ オートロック ○ オートロック ハンズフリー ○ 宅配BOX ○ 管理人(日勤) ○ 防犯カメラ ○ インターホン(カメラ付き) ○ 専用ごみ置場 ○ エレベーター ○ 自転車置場 ○ ガス(都市ガス) ○ 水道(公営) ○ 排水(公共下水) ○ バルコニー/ベランダ |
| 情報更新日 | 2025-12-24 17:58:57 |
| お問合せ |
お問い合わせの際に 「クリーンリバーフィネス山鼻21条 706」 もしくは 「お部屋ID:9109536」 とお伝えいただくとスムーズです。
株式会社リヴァイ
札幌市市中央区宮の森3条4丁目6番7 301
011-676-5481
|

| 間取り | / 1LDK 11.7*5.7 | ||
|---|---|---|---|
| 完成年月 | / 2024年03月 | ||
| 構造 | / 鉄筋コンクリート造地上15階 | ||
| 入居可能日 | / 空室 | ||
| 総戸数 | / | ||
| 契約形態 | / | ||
| 駐車場 | / 12000円 都度管理組合に空室確認必要 | ||
| 売却(敷引) | / | ||
| 割引サービス | / | ||
| 設備 | / ○ 2人入居可能 ○ 給湯器(都市ガス) ○ ガスコンロ(3口以上) ○ システムキッチン ○ 食器洗浄乾燥機(ビルドイン型) ○ 風呂(ユニットバス) ○ トイレ(水洗) ○ 洗面台(独立) ○ 浴室乾燥機 ○ 暖房便座 ○ シャワートイレ ○ 追い焚き ○ バス・トイレ別 ○ エアコン(冷房のみ) ○ 暖房(都市ガス) ○ 床暖房 ○ ウォークインクローゼット ○ トランクルーム ○ シューズボックス ○ BS ○ 光ファイバー ○ インターネット対応 ○ オートロック ○ オートロック ハンズフリー ○ 宅配BOX ○ 管理人(日勤) ○ 防犯カメラ ○ インターホン(カメラ付き) ○ 専用ごみ置場 ○ エレベーター ○ 自転車置場 ...その他 | ||
| 備考 | / ○ 普通借家 ○ 2年間 | ||
クリーンリバーフィネス山鼻21条 706
物件所在地:北海道札幌市中央区南二十一条西7丁目
札幌市電「東屯田通」徒歩2分
札幌市電「幌南小学校前」徒歩3分
90,000円
| ■管理費 | 10,000円 |
|---|---|
| ■敷金 | 1ヶ月 |
| ■礼金 | 1ヶ月 |
|
<その他費用>
保険: 23,500円 |
|