Menu
北海道札幌市東区北二十条東16丁目 /1LDK /32.92m2 /4階部分 /南向き /
| 賃料(共益費) | 65,000円 (4,000円) |
|---|
| 間取り(面積) | 1LDK ( 32.92 m2) |
|---|
シックで落ち着いた外観に、暮らしやすさを考えた1LDKタイプ。
都市ガス・エアコン・システムキッチン・オートロック・宅配ボックス完備など、快適設備がしっかり整っています。
Room Plan
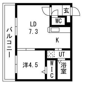
| 間取タイプ | 1LDK | ||
|---|---|---|---|
| 間取詳細 | LD7.3×4.5 | ||
| 専有面積 | 32.92m2 | ||
| 方 位 | 南向き | ||
| 所在階 | 4階部分 | ||
| 賃 料 | 65,000円 | ||
| 管理費 | 4,000円 | ||
| 敷 金 | 1ヶ月 | ||
| 礼 金 | 1ヶ月 | ||
| 状 態 |
空室
入居時期:即入 |
||
| 物件種別 | [住居用] マンション |
|---|---|
| 所在地 | 北海道札幌市東区北二十条東16丁目 |
| 交通 | 地下東豊線「元町」徒歩9分 地下東豊線「環状通東」徒歩12分 |
| 構造 | 鉄筋コンクリート造 地上4階 |
| 築年 | 2025年10月築 |
| 駐車場 |
○ ペット相談(犬・猫可) ○ 2人入居可能 ○ 保証会社利用必須
○ 給湯器(都市ガス) ○ ガスコンロ ○ システムキッチン
○ 風呂 ○ トイレ ○ 洗面台 ○ 暖房便座 ○ 洗髪洗面化粧台
○ エアコン(冷房のみ) ○ 暖房(都市ガス)
○ ウォークインクローゼット ○ シューズボックス
○ BS ○ CS ○ インターネット対応(回線工事不要・契約不要) ○ ネット使用料不要
○ オートロック ○ 宅配BOX ○ 防犯カメラ ○ インターホン(カメラ付き)
○ 専用ごみ置場 ○ 自転車置場 ○ ガス(都市ガス)
| 物件種別 | [住居用] マンション |
|---|---|
| 物件名 | URBAN STAGE北20条 |
| 号室名 | 406 |
| 所在地 | 北海道札幌市東区北二十条東16丁目4-25 |
| 交通 | 地下東豊線「元町」徒歩9分 地下東豊線「環状通東」徒歩12分 |
| 構造 | 鉄筋コンクリート造地上4階 |
| 築年月 | 2025年10月 |
| 駐車場 | |
| 町会費 | |
| 所在階 | 4階部分 |
| 方位 | 南向き   |
| 間取り |
1LDK LD7.3×4.5 |
| 専有面積 | 32.92 m2 |
| 状態 | 空室 |
| 賃料 | 65,000円 |
| 共益費 | 4,000円 |
| 敷金 | 1ヶ月 |
| 礼金 | 1ヶ月 |
| 他諸経費 |
保険:保険要加入 ジャパン少額短期保険(安心サポートに含まれています) カギ交換費用:11,000円(契約時) 新築入居時はかかりません ※ 特記されているものだけを表示していますので、詳しくはお問い合わせの際にご確認ください。 |
| その他 |
法人契約可 普通借家2年間 普通借家 |
| オススメ |
○ シックで落ち着いた外観に、暮らしやすさを考えた1LDKタイプ。 都市ガス・エアコン・システムキッチン・オートロック・宅配ボックス完備など、快適設備がしっかり整っています。 |
| 設備・条件 | ○ ペット相談(犬・猫可) ○ 2人入居可能 ○ 保証会社利用必須 ○ 給湯器(都市ガス) ○ ガスコンロ ○ システムキッチン ○ 風呂 ○ トイレ ○ 洗面台 ○ 暖房便座 ○ 洗髪洗面化粧台 ○ エアコン(冷房のみ) ○ 暖房(都市ガス) ○ ウォークインクローゼット ○ シューズボックス ○ BS ○ CS ○ インターネット対応(回線工事不要・契約不要) ○ ネット使用料不要 ○ オートロック ○ 宅配BOX ○ 防犯カメラ ○ インターホン(カメラ付き) ○ 専用ごみ置場 ○ 自転車置場 ○ ガス(都市ガス) |
| 情報更新日 | 2025-12-01 11:39:12 |
| お問合せ |
お問い合わせの際に 「URBAN STAGE北20条 406」 もしくは 「お部屋ID:8319821」 とお伝えいただくとスムーズです。
株式会社リヴァイ
札幌市市中央区宮の森3条4丁目6番7 301
011-676-5481
|

| 間取り | / 1LDK LD7.3×4.5 | ||
|---|---|---|---|
| 完成年月 | / 2025年10月 | ||
| 構造 | / 鉄筋コンクリート造地上4階 | ||
| 入居可能日 | / 空室 | ||
| 総戸数 | / | ||
| 契約形態 | / | ||
| 駐車場 | / | ||
| 売却(敷引) | / | ||
| 割引サービス | / | ||
| 設備 | / ○ ペット相談(犬・猫可) ○ 2人入居可能 ○ 保証会社利用必須 ○ 給湯器(都市ガス) ○ ガスコンロ ○ システムキッチン ○ 風呂 ○ トイレ ○ 洗面台 ○ 暖房便座 ○ 洗髪洗面化粧台 ○ エアコン(冷房のみ) ○ 暖房(都市ガス) ○ ウォークインクローゼット ○ シューズボックス ○ BS ○ CS ○ インターネット対応(回線工事不要・契約不要) ○ ネット使用料不要 ○ オートロック ○ 宅配BOX ○ 防犯カメラ ○ インターホン(カメラ付き) ○ 専用ごみ置場 ○ 自転車置場 ○ ガス(都市ガス) | ||
| 備考 | / ○ 法人契約可 ○ 普通借家 ○ 2年間 | ||
URBAN STAGE北20条 406
物件所在地:北海道札幌市東区北二十条東16丁目
地下東豊線「元町」徒歩9分
地下東豊線「環状通東」徒歩12分
65,000円
| ■管理費 | 4,000円 |
|---|---|
| ■敷金 | 1ヶ月 |
| ■礼金 | 1ヶ月 |
|
<その他費用>
保険:保険要加入 ジャパン少額短期保険(安心サポートに含まれています) カギ交換費用:11,000円(契約時) 新築入居時はかかりません |
|