Menu
北海道札幌市中央区北一条西20丁目 /テナント /74.07m2 /2階部分 /向き /
| 賃料(共益費) | 165,000円 (0円) |
|---|
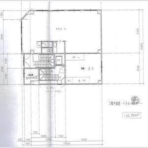
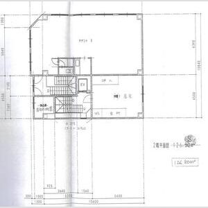
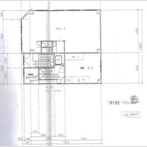
| 間取り(面積) | テナント ( 74.07 m2) |
|---|
■エアコン残置物 ■照明残置物 ■スピーカー使用不可 ■灯油は各自給油(外に灯油タンク有) ■シャワールーム完備 ■キッチン完備 ★家賃大幅値下げしました!!!★最大フリーレント2ヵ月!※審査があります。
Room Plan
| 間取タイプ | テナント | ||
|---|---|---|---|
| 間取詳細 | |||
| 専有面積 | 74.07m2 | ||
| 方 位 | |||
| 所在階 | 2階部分 | ||
| 賃 料 | 165,000円 | ||
| 管理費 | 0円 | ||
| 敷 金 | 450,000円 | ||
| 礼 金 | 0円 | ||
| 状 態 |
空室
入居時期:即入 |
||
| 物件種別 | [事業用] 店舗・事務所 |
|---|---|
| 所在地 | 北海道札幌市中央区北一条西20丁目 |
| 交通 | 地下東西線「西18丁目」徒歩5分 |
| 構造 | 鉄骨造 地上3階 |
| 築年 | 1999年09月築 |
| 駐車場 |
○ 事務所利用可能 ○ フリーレント ○ 保証会社利用必須
○ 給湯器(灯油)
○ トイレ(水洗) ○ 洗面台
○ エアコン
○ インターホン(カメラ付き)
○ 水道(公営) ○ 排水(公共下水) ○ 照明
| 物件種別 | [事業用] 店舗・事務所 |
|---|---|
| 物件名 | Caelum T07 |
| 号室名 | 店舗3 |
| 所在地 | 北海道札幌市中央区北一条西20丁目1-18 |
| 交通 | 地下東西線「西18丁目」徒歩5分 |
| 構造 | 鉄骨造地上3階 |
| 築年月 | 1999年09月 |
| 駐車場 | |
| 町会費 | |
| 所在階 | 2階部分 |
| 方位 | - -   |
| 間取り | テナント |
| 専有面積 | 74.07 m2 |
| 状態 | 空室 |
| 賃料 | 165,000円 |
| 共益費 | 0円 |
| 敷金 | 450,000円 |
| 礼金 | 0円 |
| 他諸経費 |
保険:保険要加入 2年契約(借主直接契約) ※ 特記されているものだけを表示していますので、詳しくはお問い合わせの際にご確認ください。 |
| その他 |
法人契約可 普通借家3年間 普通借家 |
| オススメ | ○ ■エアコン残置物 ■照明残置物 ■スピーカー使用不可 ■灯油は各自給油(外に灯油タンク有) ■シャワールーム完備 ■キッチン完備 ★家賃大幅値下げしました!!!★最大フリーレント2ヵ月!※審査があります。 |
| 設備・条件 | ○ 事務所利用可能 ○ フリーレント ○ 保証会社利用必須 ○ 給湯器(灯油) ○ トイレ(水洗) ○ 洗面台 ○ エアコン ○ インターホン(カメラ付き) ○ 水道(公営) ○ 排水(公共下水) ○ 照明 |
| 情報更新日 | 2026-02-05 21:43:01 |
| お問合せ |
お問い合わせの際に 「Caelum T07 店舗3」 もしくは 「お部屋ID:8315652」 とお伝えいただくとスムーズです。
株式会社リヴァイ
札幌市市中央区宮の森3条4丁目6番7 301
011-676-5481
|

| 間取り | / テナント | ||
|---|---|---|---|
| 完成年月 | / 1999年09月 | ||
| 構造 | / 鉄骨造地上3階 | ||
| 入居可能日 | / 空室 | ||
| 総戸数 | / | ||
| 契約形態 | / | ||
| 駐車場 | / | ||
| 売却(敷引) | / | ||
| 割引サービス | / | ||
| 設備 | / ○ 事務所利用可能 ○ フリーレント ○ 保証会社利用必須 ○ 給湯器(灯油) ○ トイレ(水洗) ○ 洗面台 ○ エアコン ○ インターホン(カメラ付き) ○ 水道(公営) ○ 排水(公共下水) ○ 照明 | ||
| 備考 | / ○ 法人契約可 ○ 普通借家 ○ 3年間 | ||
Caelum T07 店舗3
物件所在地:北海道札幌市中央区北一条西20丁目
地下東西線「西18丁目」徒歩5分
165,000円
| ■管理費 | 0円 |
|---|---|
| ■敷金 | 450,000円 |
| ■礼金 | 0円 |
|
<その他費用>
保険:保険要加入 2年契約(借主直接契約) |
|